DOPPELHAUS VANCOUVER 122
Fakten:
Bebaute Fläche:
74,34 m 2
Satteldach 38°:
Nettogrundfläche EG:
61,16 m2
Nettogrundfläche 1. OG:
61,02 m2
Nettogrundfläche 2. OG:
48,72 m2
Nettogrundfläche Gesamt:
170,90 m2
Kniestock:
35 cm
Pultdach 5°:
Nettogrundfläche EG:
61,16 m2
Nettogrundfläche 1. OG:
61,02 m2
Nettogrundfläche 2. OG:
44,42 m2
Nettogrundfläche Gesamt:
166,60 m2
Kniestock:
269 cm
Flachdach 1°:
Nettogrundfläche EG:
61,16 m2
Nettogrundfläche 1. OG:
61,02 m2
Nettogrundfläche 2. OG:
44,42 m2
Nettogrundfläche Gesamt:
166,60 m2
Alle Flächenangaben nach DIN 277.
Alle Angaben beziehen sich auf das Grundmodell,
ohne Sonderbauteile.
DOPPELHAUS VANCOUVER 122
Doppelhaus VANCOUVER 122 erhalten Sie mit 2 oder 3 Geschossen, je nachdem was Sie benötigen. Und auch im Punkt Dachgestaltung entscheiden Sie sich bei beiden Varianten für Pultdach, Satteldach oder Flachdach. So entsteht die genau zu Ihnen passende Doppelhaushälfte, die Sie mit den vielen Architektur-Bauteilen noch weiter auf Ihre individuellen Wünsche anpassen können.
Zwei oder drei Geschosse? VANCOUVER 122 bietet in beiden Ausführungen clevere Lösungen, mit denen auf kompakten Bauplätzen ein Optimum an Wohnraum gewonnen werden kann. In beiden Varianten befindet sich im Erdgeschoss der Lebensmittelpunkt mit Wohn- und Esszimmer sowie Küche und den Funktionsräumen WC, Abstell- und Hauswirtschaftsraum. Die Ausführung mit 2 Geschossen ist im Obergeschoss mit Schlafzimmer und einem Bad für alle Bewohner ausgestattet.
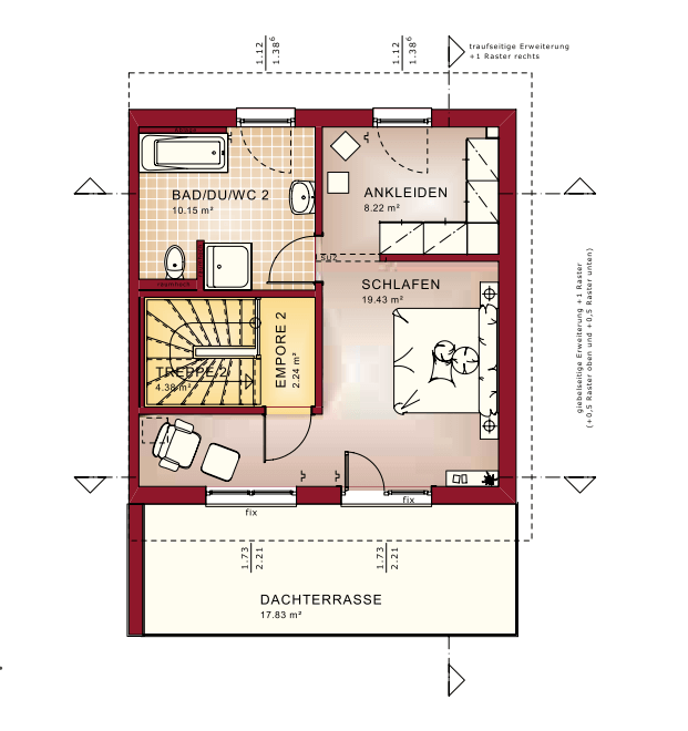
In der Ausführung mit 3 Geschossen beherbergt das 1. Obergeschoss die Schlafräume für Kinder und Gäste mit eigenem Bad. Das 2. Obergeschoss wird zu einem großzügigen Elternschlafzimmer mit Ankleide und Bad.
Ihre Vorteile beim Fertighaus auf einen Blick
Individuelle Gestaltungsfreiheit
Millimetergenaue und moderne Vorfertigung
Hohe Energieeffizienz (Geringe Nebenkosten)
Alles aus einer Hand (Haus, Bodenplatte, Keller…)
Nachhaltig
Beste Konditionen durch Preisgarantie für Baufinanzierung
Beste Konditionen durch Preisgarantie für Baufinanzierung
Planungssicherheit
Premium-Versicherungspaket inklusive
Qualität garantiert
Made in Germany
Eigenleistung vereinfacht (Malerarbeiten, Bodenbeläge, Sanitärobjekte…)
Einfach und entspannt bauen
Zusatzleistungen (Garage, Küche…)
Kurze Aufbauzeit
SIE HABEN FRAGEN?
DANN FREUE ICH MICH AUF IHRE NACHRICHT!














